| Objekt | Saniertes Mehrfamilienhaus |
|---|---|
| Ort | 71287 Weissach |
| Baujahr | urspr. ca. 1900 / überwiegend saniert (zuletzt 2018) |
| Wohnungen | 2 Maisonette-Wohnungen sowie Ausbaupotenzial |
| Wohnfläche | ca. 238 m² |
| Grundfläche | ca. 365 m² (inkl. Lager) |
| Grundstücksfl. | ca. 261 m² |
| Stellplatz | 2 Garagen, 2 Außenstellplätze sowie Stellplatz an der Straße |
| Endenergie- bedarf | 66,4 kWh/(m²*a) |
| Kaufpreis | Leider bereits verkauft. |
Objektbeschreibung
Dieses Mehrfamilienhaus in ruhiger, zentraler Lage von Weissach bietet Ihnen neben zwei schönen, renovierten Maisonette-Wohnungen viel Raum für weitere Wohnideen.
Das Gebäude wurde durch den aktuellen Eigentümer (eigener Handwerksbetrieb) umfangreich saniert und umgebaut.
Im Obergeschoss / Dachgeschoss befinden sich zwei modern und offen gestaltete Maisonette-Wohnungen mit großer Dachterrasse:
- Wohnung I: 3,5 Zimmer, ca. 81 m²
- Wohnung II: 4,5 Zimmer, ca. 107 m².
Im Erdgeschoss befinden sich weitere Wohnräume, welche aktuell als Arbeitszimmer genutzt werden, sowie ein Bad / Waschküche. Hier ist evtl. eine kleine 2-Zimmerwohnung mit ca. 50 m² denkbar.
Mögliches Ausbaupotenzial bietet der nicht ausgebaute Scheunenboden im Obergeschoss mit einer Nettogrundfläche von ca. 110 m². Es gibt hierzu bereits Architektenpläne zum Umbau in zwei weitere Wohnungen.
Im Erdgeschoss befinden sich zudem ca. 60 m² Lager- bzw. Nutzflächen sowie ca. 27 m² Garagenflächen. Dies bietet Ihnen großzügige Abstellmöglichkeiten, was evtl. auch für einen Handwerker ideal wäre.
Das Haus verfügt zudem über einen großen Gewölbekeller.
Zum Haus gehören 2 Garagen, 2 Außenstellplätze sowie ein Stellplatz an der Straße.
Dieses Mehrfamilienhaus bietet Ihnen viele Möglichkeiten – für die Eigennutzung oder auch zur Kapitalanlage.
Eine Innenbesichtigung des Hauses ist nach Absprache mit unserem Büro gerne möglich.
Eckdaten
- Mehrfamilienhaus mit Garagen / Stellplätzen
- Im OG / DG: 2 sanierte Maisonette-Wohnungen ca. 107 m² / 81 m² mit großer Dachterrasse. Im EG: Wohnen / Arbeiten (Wohnfläche ca. 50 m²) sowie Nutzfläche ca. 60 m² und Garage ca. 27 m².
- Potenzial: Scheunenboden (NGF ca. 110 m²) / Gewölbekeller.
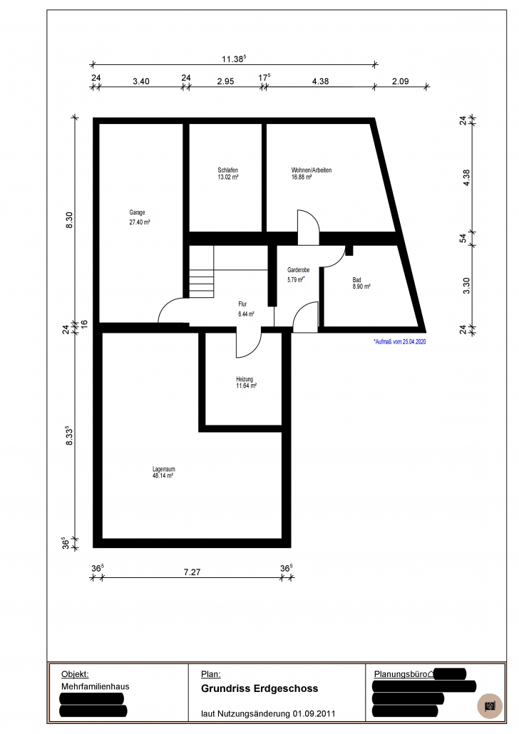
Erdgeschoss:
- 2 Wohn- bzw. Arbeitsräume insg. ca. 30 m²
- Waschküche / Bad mit Badewanne, Dusche, WC ca. 9 m²
- Flur / Garderobe ca. 11 m²
- Ausstattung: Elektroheizung / Holz-Kaminofen / Durchlauferhitzer
- Lager ca. 48 m² / Heizraum ca. 11 m² / Garage ca. 27 m².
Obergeschoss / Dachgeschoss:
Maisonette-Wohnung I:
- 3,5 Zimmer mit ca. 81 m² Wohnfläche
- OG: Großzügiger Wohn-/ Essbereich mit Zugang zur Terrasse, halboffene Küche mit Einbauküche, Gäste-WC
- DG: Schlafzimmer, kleines Ankleidezimmer, Tageslichtbad mit Wanne, Dusche, Handwaschbecken, WC und Pissoir
- Ausgebauter Spitzboden
- Gute Ausstattung.
Maisonette-Wohnung II:
- 4,5 Zimmer Wohnung ca. 107 m² Wohnfläche
- OG: Großzügiger Wohn-/ Essbereich mit Zugang zur Terrasse, halboffene Küche mit Einbauküche, Garderobe
- DG: 2 Schlafzimmer, halboffenes Büro, Tageslichtbad mit Wanne, Dusche, Handwaschbecken, WC und Waschmaschinenanschluss
- Gute Ausstattung.
Weitere Flächen:
- Nicht ausgebauter Scheunenboden (OG / DG)
- Gewölbekeller / normaler Keller
- Zwei Garagen, 2 Außenstellplätze sowie Stellplatz an der Straße.
Ausstattung:
- Außenwände: Fachwerk. Fassade wurde 2017/18 verputzt und gestrichen
- Fenster: Überwiegend 2-/ 3-fach isolierverglaste Kunststofffenster + Rollläden (2015)
- Sanitär / Elektrik / Installationen modernisiert
- Moderne, hochwertige Elektroheizung (Fa. Wibo) sowie Holz-Kaminöfen.
Energieausweis:
- Endenergieverbrauch 66,4 kWh(m²a) / Wesentliche Energieträger: Strom / Holz
- Energieeffizienzklasse B
- Baujahr lt. Energieausweis 1900 saniert 2011-2017.
Lage
Die Gemeinde Weissach (ca. 7.500 Einwohner) liegt im Landkreis Böblingen nordwestlich von Stuttgart. Weissach ist insb. durch das Porsche-Entwicklungszentrum bekannt.
Die Gemeinde bietet einen hohen Wohn- und Freizeitwert. Spielplätze, Kindergärten sowie eine Grund- und Gemeinschaftsschule sind vorhanden. Alle Geschäfte für den täglichen Bedarf sowie öffentliche Verkehrsmittel sind fußläufig erreichbar.
Die Autobahnauffahrt Heimsheim (A 8) erreicht man in wenigen Autominuten. Damit besteht eine gute Anbindung an das überregionale Straßennetz und Sie erreichen in kurzer Zeit die Landeshauptstadt Stuttgart, den Flughafen wie auch umliegende Städte und Gemeinden.
Durch diverse Buslinien ist Weissach außerdem gut an den öffentlichen Nahverkehr angeschlossen.
Hinweis
Alle Informationen, Angaben und Darstellungen wurden mit größter Sorgfalt zusammengetragen. Jedoch sind wir bei der Weitergabe objektbezogener Daten ausschließlich auf die Informationen unserer Auftraggeber angewiesen und können folglich für die Vollständigkeit und Richtigkeit keine Gewähr übernehmen.




